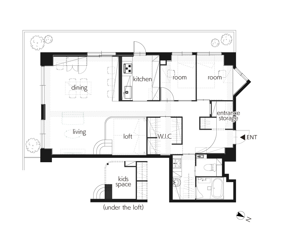
子どもの想像力を育む洞穴のある住まい
「わくわくするような住まいをつくりたい」そんな想いから、O様ご家族のリノベーションは始まりました。
洞穴の秘密基地のようなキッズスペースや、黒板塗装、マグネットボード。日常の中に“遊び”や“発見”が自然と生まれ、3人の子どもたちがそれぞれの感性を伸ばしていける空間を思い描いていきました。
一方で、現実的な家族の日常もそこにある。家事動線や収納を細かく設計し、忙しい日々の中、少しでも楽に暮らせるよう配慮しました。
「わくわく」と「暮らしやすさ」そのどちらも大切にしたことで、使いやすさが生む余白で遊び心も生まれ、自然と愛着が積み重なっていく住まいが完成しました。






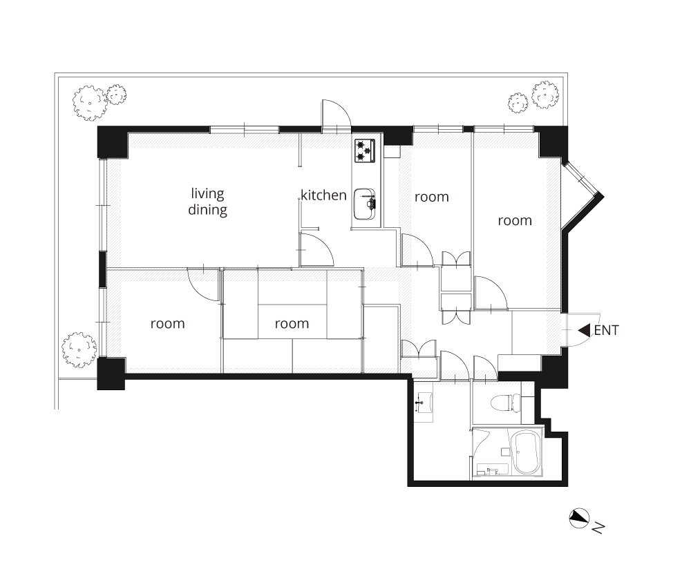
リノベーションは、自分たちの暮らしに、少しだけ主体性を取り戻す選択。
オーナー: Oさま